$539,000

$20,000

25 Charlton Crescent, Norfolk, ON N3Y 1A8

Simcoe, Norfolk,

| | | 1,500 sq.ft. | Year Built: 51-99 |

Properties with this icon are courtesy of TRREB.

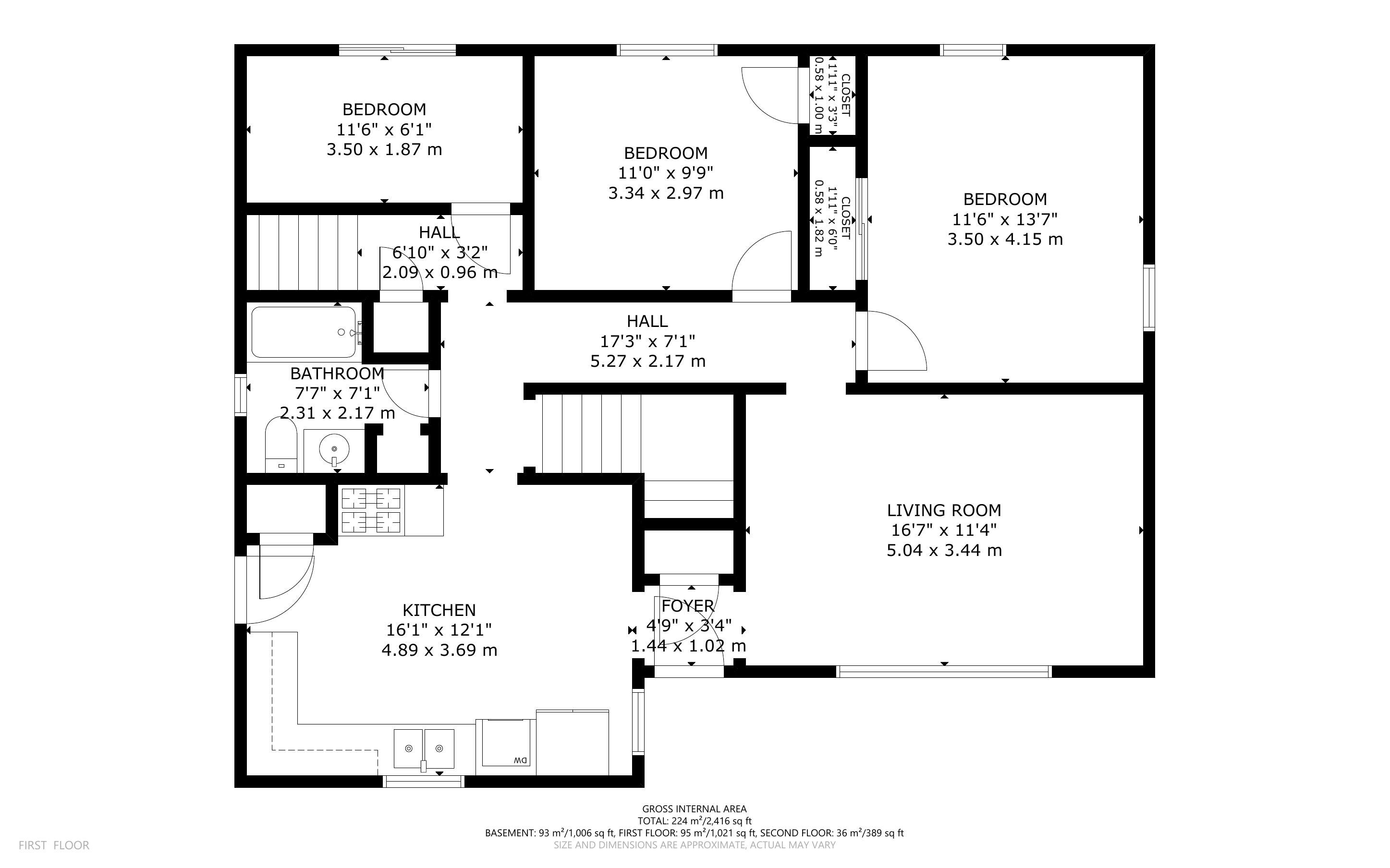
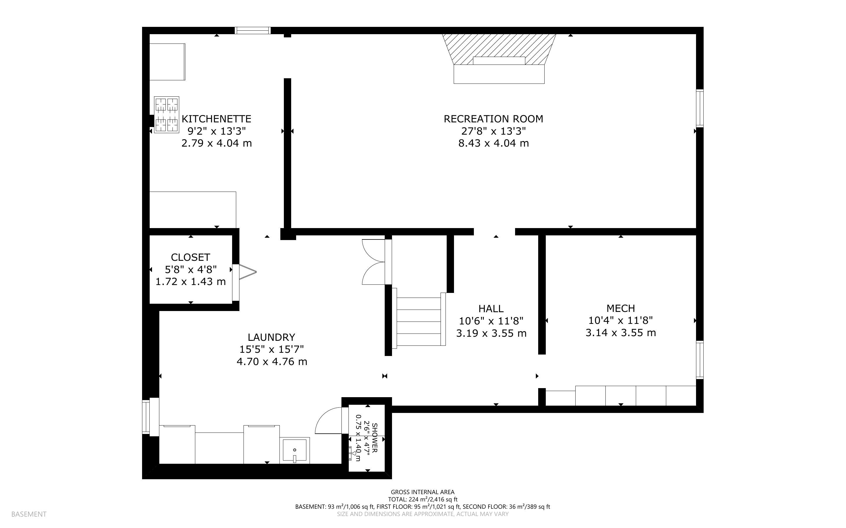
Sweet four bedroom raised bungalow in a great neighbourhood! Pull in to the double wide private driveway leading to a manicured front yard. Step up to the covered front porch and head indoors. The front foyer with coat closet leads to both the living room and the eat-in kitchen. The living room is cozy and bright with natural light from the large front window. The eat-in kitchen offers plenty of cupboard space, a dining area, a closet (or pantry) and side door to outside. Down the hall are the first two comfortable bedrooms including the primary bedroom and the four piece bathroom. Up the stairs you will find 2 more bedrooms and a 2 piece bath. Also on the main floor is a den (or office space) with sliding doors leading to the back deck. Downstairs is a spacious recreation room with gas fireplace. Plenty of space to watch a movie or have a game night with family and friends. Next you'll find the kitchenette, laundry room and utility room. Tons of storage space down here too! Outdoors enjoy relaxing, barbecuing and entertaining on the multilevel deck with gazebo for shade on those warm summer days. The backyard is expansive and landscaped with perennial gardens. Lots of room for kids to play and pets to roam! An attached single car garage provides a spot to keep your car snow free, a large shed for a potential man (or lady) cave and additional smaller shed to store all those extras in life. This home is a pleasure to see!

Property Info
MLS®: X12710038
Listing Courtesy of ROYAL LEPAGE TRIUS REALTY
Total Bedrooms 4
Total Bathrooms 2
Basement 1
Floor Space 1100-1500 sq.ft.
Lot Size 15863 sq.ft.
Style Bungalow-Raised
Last Updated 2026-01-19
Property Type House
Listed Price $539,000
Unit Pricing $359/sq.ft.
Tax Estimate $3,824/Year
Year Built 51-99
Rooms
More Details
Exterior Finish Brick Veneer, Vinyl Siding
Parking Cover 1
Parking Total 4
Water Supply Municipal
Foundation Sewer
Summary
    Location and General Information
  • HoldoverDays: 30
  • Architectural Style: Bungalow-Raised
  • Property Type: Residential Freehold
  • Property Sub Type: Detached
  • DirectionFaces: North
  • GarageType: Attached
  • Directions: Follow Norfolk St. S., go West on Parker Drive & North on Charlton Cres. Property on North side.
  • Taxes and HOA Information
  • Tax Year: 2025
  • Parking
  • Parking Features: Private Double
  • ParkingSpaces: 4
  • Parking Total: 5
Interior and Exterior Features
    Bathrooms Information
  • WashroomsType1: 1
  • WashroomsType1Level: Main
  • WashroomsType2: 1
  • WashroomsType2Level: Second
  • Bedrooms Information
  • BedroomsAboveGrade: 4
  • Interior Features
  • Interior Features: Sump Pump, Water Heater Owned
  • Basement: Full, Finished
  • Cooling: Central Air
  • HeatSource: Electric
  • HeatType: Baseboard
  • LaundryLevel: Lower Level
  • Exterior Features
  • ConstructionMaterials: Brick Veneer, Vinyl Siding
  • Exterior Features: Deck, Landscaped
  • Roof: Asphalt Shingle
  • Pool Features: None
Property
    Utilities
  • Sewer: Sewer
  • Property and Assessments
  • Foundation Details: Concrete Block
  • Topography: Hilly
  • Lot Information
  • Parcel Number: 502110051
  • LotSizeUnits: Feet
  • LotDepth: 186.62
  • LotWidth: 85
  • Others
  • PropertyFeatures: School
Sold History
MAP & Nearby Facilities (The data is not provided by TRREB)
Map
Nearby Facilities
Public Transit ({{ nearByFacilities.transits? nearByFacilities.transits.length:0 }})
SuperMarket ({{ nearByFacilities.supermarkets? nearByFacilities.supermarkets.length:0 }})
Hospital ({{ nearByFacilities.hospitals? nearByFacilities.hospitals.length:0 }})
Other ({{ nearByFacilities.pois? nearByFacilities.pois.length:0 }})
School Catchments
School Name Type Grades Catchment Distance
{{ item.school_type }} {{ item.school_grades }} {{ item.is_catchment? 'In Catchment': '' }} {{ item.distance }}
Mortgage Calculator (The data is not provided by TRREB)
$
$
$
%
%
Estimated Payments

$

Weekly Bi Weekly Semi Monthly Monthly

Nearby Similar Active listings
Nearby Open House listings
Nearby Price Reduced listings
Nearby Similar Listings Closed
MLS Listing Browsing History
Obtain More Info
500 word remaining